Due to the health concerns created by Coronavirus we are offering personal 1-1 online video walkthough tours where possible.




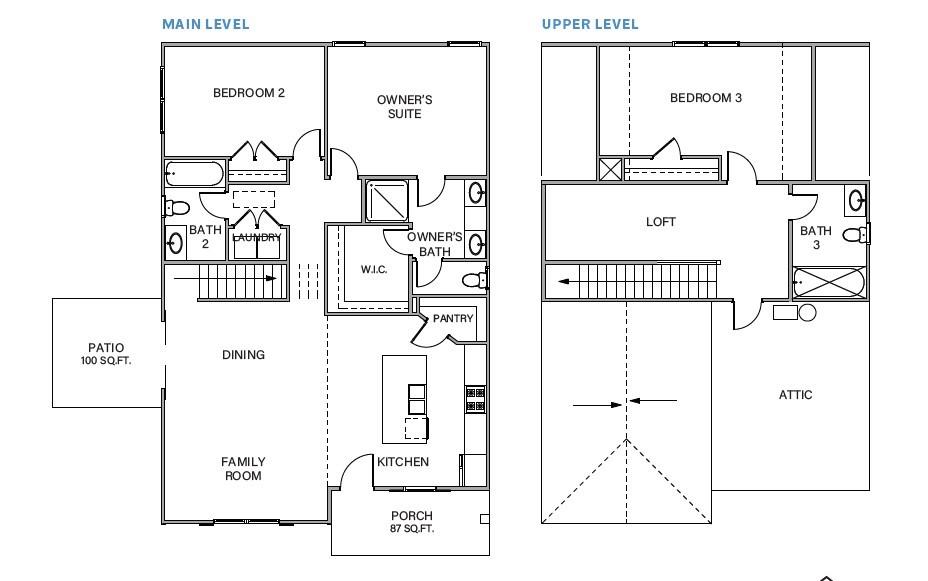
MOVE IN READY!! Discover the perfect blend of tranquility and adventure in this beautifully master on main appointed 3-bedroom, 3-bathroom with Loft mountain cottage, nestled in the exclusive gated community of Lake Arrowhead offering breathtaking views of the surrounding mountains and a serene lake. Open Concept kitchen with loads of storage with walk-in pantry and wall pantry, carpet in all bedrooms, LVP throughout main living area and loft. Easy access to the South Gate and the marina, walking distance to Red Cloud Park Sports Complex.
| 4 days ago | Status changed to Active | |
| 4 days ago | Listing updated with changes from the MLS® | |
| 7 days ago | Listing first seen on site |
Did you know? You can invite friends and family to your search. They can join your search, rate and discuss listings with you.