Due to the health concerns created by Coronavirus we are offering personal 1-1 online video walkthough tours where possible.




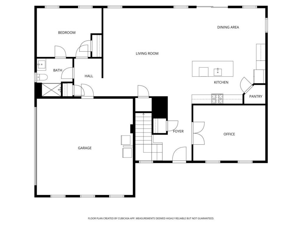
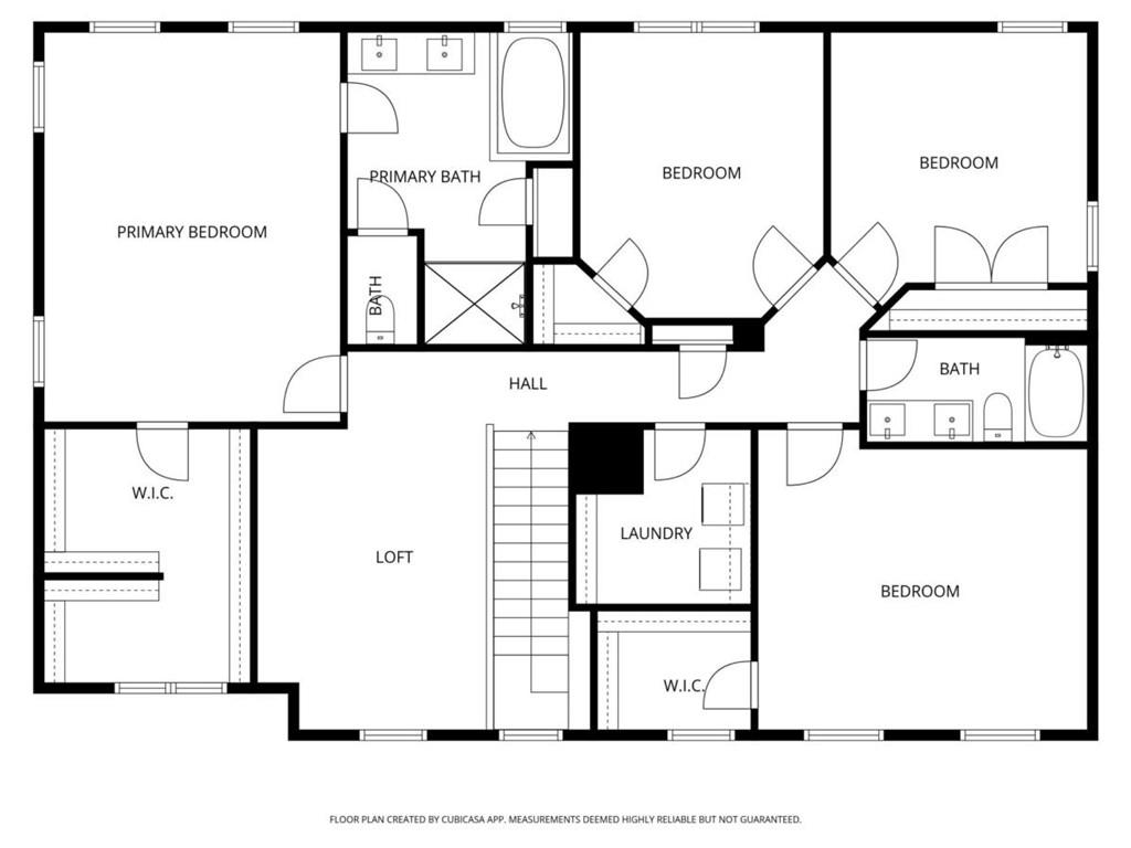
THE RARE ST. LAWRENCE plan, Better-Than-New Luxury with up to $15K in Incentives! Missed out on the sold-out Edinburgh community? Here is your rare second chance. Built in June 2025, this designer St. Lawrence floor plan by Ryan Homes is no longer being built in Henry County-making this a true one-of-a-kind opportunity. Designed for the modern professional and master entertainer, this home flows effortlessly. The main level boasts a private executive office for the remote worker and a full guest suite, perfect for hosting family in style. The heart of the home is a gourmet kitchen featuring a massive island that overlooks the open living space. Upstairs, the luxury continues with a versatile loft and a spacious primary sanctuary featuring a frameless glass shower and a deep soaking tub. Step outside to a backyard that outshines new construction. The owners invested over $22,000 in a premium vinyl privacy fence and a massive extended patio, creating the ultimate footprint for summer soirees and weekend BBQs. Why pay new construction prices? The sellers are offering $10,000 in closing costs with a full priced offer, and our preferred lender is offering up to 1% in closing costs. That's up to a $15,000 total value! Use it to buy down your rate or bring less cash to the table. Move-in ready luxury is calling!
| 2 weeks ago | Price changed to $499,000 | |
| 2 weeks ago | Listing updated with changes from the MLS® | |
| 2 months ago | Status changed to Active | |
| 2 months ago | Listing first seen on site |
Did you know? You can invite friends and family to your search. They can join your search, rate and discuss listings with you.